МТ-18
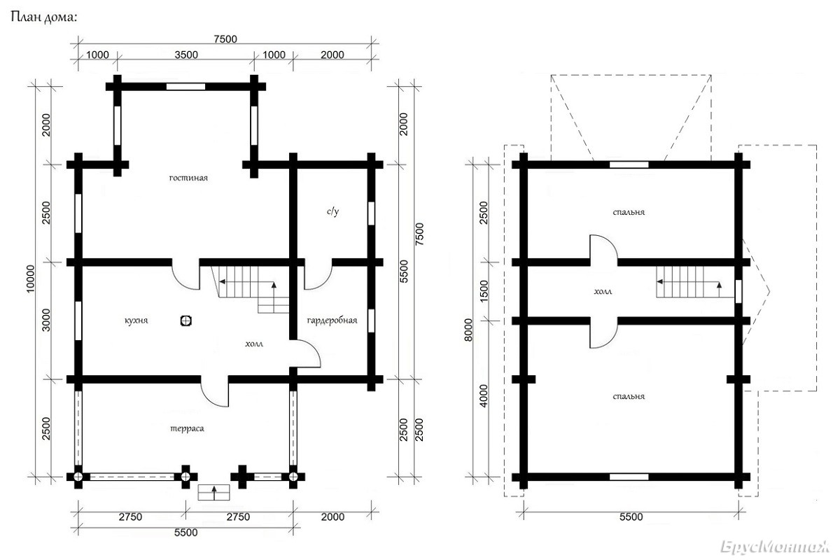
Планировка проекта(нажмите для увеличения):
Соотношение размеров
10,0х7,5
Цена
90 225 руб.
Площадь под застройку
62 м²
Общая площадь
106 м²
Характеристики

Все размеры согласно плана даны по осям

Нулевой ряд (обвязочный брус) Выполняется из бруса 200x150 мм.

Лаги пола  Обрезная доска 50x150 мм. (на ребро) с шагом 50-60 см.

Черновой пол Необрезная окоренная доска толщиной 20 мм.

Чистовой пол Шпунтованная половая доска толщиной 28 мм. Возможна замена на доску пола толщиной 36 мм.

Потолок Вагонка хвойных пород класса «В» технической сушки (допускается наличие сучков, не черных, не выпадающих).

Потолок мансарды Вагонка хвойных пород класса «В» технической сушки (допускается наличие сучков, не черных, не выпадающих).

Утепление пола Утеплитель (минеральная вата URSA/IZOVER) толщиной 50 мм., проложенный с двух сторон ветрогидропароизоляцией. Возможно увеличение толщины утепления.

Утепление межэтажного перекрытия Утеплитель (минеральная вата URSA/IZOVER) толщиной 50 мм., проложенный с двух сторон ветрогидропароизоляцией. Возможно увеличение толщины утепления.

Утепление потолка мансарды Утеплитель (минеральная вата URSA/IZOVER) толщиной 50 мм., проложенный с двух сторон ветрогидропароизоляцией. Возможно увеличение толщины утепления.

Стеновой материал Оцилиндрованное бревно хвойных пород диаметром 200 мм./ 220 мм./240мм. Возможно увеличение величины диаметра бревна.

Фронтоны Оцилиндрованное бревно хвойных пород диаметром 200 мм./ 220 мм./240 мм.

Сборка сруба Стены собираются из изготовленного на станке бревна «в чашу» с прокладкой межвенцового утеплителя (уплотнителя) джутовую полосу.

Перегородки Выполнены из оцилиндрованного бревна или каркасно-щитовые перегородки (если есть согласно плана) обшиты с двух сторон вагонкой хвойных пород технической сушки.

Высота потолков 1-го этажа – 2,5м + 5см.

Высота потолков 2-го этажа – 2,4м + 5см.

Стропильные фермы – обрезная доска 50х150 с шагом 80-100см.

Обрешетка Необрезная окоренная доска толщиной 20 мм. с шагом 30-40 см.

Кровля Ондулин (цвет - красный/зелёный/коричневый) или оцинкованный профнастил. Под крышу укладывается ветрогидропароизоляция. Возможна замена кровельного покрытия на металлочерепицу или мягкую кровлю.

Карнизы и поднебесники Ширина 0,40-0,50 м. Подшиваются вагонкой хвойных пород естественной влажности. Отделываются плинтусом хвойных пород.

Отделка парной (если есть) Стены, потолок - осиновая вагонка, экран из алюминиевой фольги. Оборудуется двухуровневыми полками из осиновой вагонки (ширина верхнего полка - 60 см., ширина нижнего полка - 40 см.) и устанавливается отдушина. Возможно исполнение полков из осиновой доски. Дверь в парную - банная.

Входная дверь Каркасно-щитовая наборная из вагонки, утеплённая.

Межкомнатные двери Филенчатые.

Балконные (если есть) Филенчатые двери со стеклом.

Окна Деревянные окна двойного остекления, открывающиеся.

При установке окон и дверей над ними оставляется технологический зазор для усадки 3-5 см, который закладывается утеплителем и закрывается обналичкой.

Лестница Ступени, перила, ограждение на 2-ом этаже (из строганной доски).

Терраса (если есть) Выполняется из оцилиндрованного бревна. Потолок подшивается вагонкой хвойных пород естественной влажности. Пол - половая шпунтованная доска толщиной 28 мм. (возможна замена на половую доску толщиной 36 мм.). Пол и потолок террасы – не утепляется.

Балкон (если есть) Выполняется из оцилиндрованного бревна. Потолок подшивается вагонкой хвойных пород естественной влажности. Пол - половая шпунтованная доска толщиной 28 мм. (возможна замена на половую доску толщиной 36 мм.)

 

По желанию Заказчика, возможно изменение комплектации!