ДБ-20
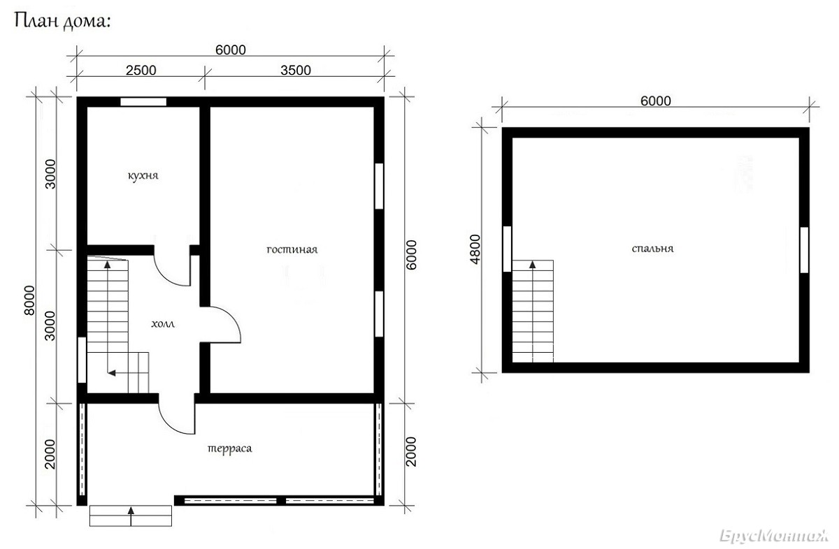
Планировка проекта(нажмите для увеличения):
Соотношение размеров
6,0х8,0
Цена
74 655 руб.
Площадь под застройку
48 м²
Общая площадь
79 м²
Характеристики

Брус (толщина)

Цена под усадку

Цена под ключ

92

380 м2

500 м2

145

410 м2

520 м2

В комплектацию входит

Все размеры согласно плану даны по наружным стенам.

Нулевой ряд (обвязочный брус) Выполняется двойная обвязка из бруса 100х150 мм.

Половые лаги Обрезная доска 50х150 мм. (на ребро) с шагом 60 см.

Черновой пол отсутствует.

Стеновой материал 1-го и 2-го этажейПрофилированный брус хвойных пород сечением 90х140 мм./140х140 мм.  (строгается из бруса 100х150 мм./150х150 мм.).

Фронтоны Каркасно-щитовые. С наружной стороны фронтоны обшиты вагонкой хвойных пород естественной влажности, внутри – не обшиваются.

Сборка сруба Стены собираются «в тёплый угол». Между венцами сруба прокладывается джут.

Перегородки 1-го этажа Выполнены из профилированного бруса хвойных пород сечением 90х140 мм.  (строгается из бруса 100х150 мм.). Каркасно-щитовые перегородки (если есть согласно плану) не устанавливаются.

Перегородки 2-го этажа (если есть) Каркасно-щитовые перегородки не устанавливаются.

Высота потолка 1-го этажа 2,50 м. ± 5 см.

Высота потолка 2-го этажа 2,40 м. ± 5 см.

Стропильные фермы Обрезная доска 50х150 мм. (на ребро) с шагом 80-100 см.

Обрешётка Необрезная окоренная доска толщиной 20 мм. с шагом 30-40 см.

Кровля Рубероид. Возможна замена кровельного покрытия.

Свесы кровли Ширина 0,35м.

Оконные и дверные проёмы открытые.

Установка окон и дверей не призводится.

Лестница Черновая лестница (для строителей).

Терраса Стойки друс строганый 100х100мм./150х150мм, перила (строганная доска 40х100 мм.), балясины (строганный брусок 40х40 мм.).

В стоимость входит доставка по РБ, разгрузка и монтаж.

По желанию Заказчика, возможно изменение комплектации!

Возможна установка свайно-винтового фундамента!