ДБ-19
Планировка проекта(нажмите для увеличения):
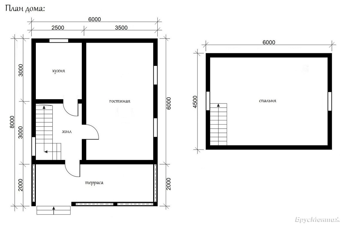
Соотношение размеров
6,0х8,0
Цена
70 875 руб.
Площадь под застройку
48 м²
Общая площадь
75 м²
Характеристики

Брус (толщина)

Цена под усадку

Цена под ключ

92

380 м2

500 м2

145

410 м2

520 м2

В комплектацию входит

Все размеры согласно плану даны по наружным стенам.

Нулевой ряд (обвязочный брус) Выполняется двойная обвязка из бруса 100х150 мм.

Половые лаги Обрезная доска 50х150 мм. (на ребро) с шагом 60 см.

Черновой пол отсутствует.

Стеновой материал 1-го и 2-го этажейПрофилированный брус хвойных пород сечением 90х140 мм./140х140 мм.  (строгается из бруса 100х150 мм./150х150 мм.).

Фронтоны Каркасно-щитовые. С наружной стороны фронтоны обшиты вагонкой хвойных пород естественной влажности, внутри – не обшиваются.

Сборка сруба Стены собираются «в тёплый угол». Между венцами сруба прокладывается джут.

Перегородки 1-го этажа Выполнены из профилированного бруса хвойных пород сечением 90х140 мм.  (строгается из бруса 100х150 мм.). Каркасно-щитовые перегородки (если есть согласно плану) не устанавливаются.

Перегородки 2-го этажа (если есть) Каркасно-щитовые перегородки не устанавливаются.

Высота потолка 1-го этажа 2,50 м. ± 5 см.

Высота потолка 2-го этажа 2,40 м. ± 5 см.

Стропильные фермы Обрезная доска 50х150 мм. (на ребро) с шагом 80-100 см.

Обрешётка Необрезная окоренная доска толщиной 20 мм. с шагом 30-40 см.

Кровля Рубероид. Возможна замена кровельного покрытия.

Свесы кровли Ширина 0,35м.

Оконные и дверные проёмы открытые.

Установка окон и дверей не призводится.

Лестница Черновая лестница (для строителей).

Терраса Стойки друс строганый 100х100мм./150х150мм, перила (строганная доска 40х100 мм.), балясины (строганный брусок 40х40 мм.).

).

В базовую комплектацию дома «ДБ-19» входит:

Все размеры согласно плану

Даны по наружным стенам.

Нулевой ряд (обвязочный брус)

Выполняется двойная обвязка из бруса 100х150 мм.

Половые лаги

Обрезная доска 50х150 мм. (на ребро) с шагом 50-60 см.

Черновой пол

Необрезная окоренная доска толщиной 20 мм.

Чистовой пол

Шпунтованная половая доска толщиной 28 мм. Возможна замена на половую доску толщиной 36 мм.

Потолок 1-го и 2-го этажей

Сухая вагонка хвойных пород класса «В» (допускается наличие сучков, не черных, не выпадающих).

Утепление Пол утеплитель (минеральная вата URSA/IZOVER) толщиной 50 мм., проложенный с двух сторон гидропароизоляцией. Утепление межэтажного перекрытия. Утеплитель (минеральная вата URSA/IZOVER) толщиной 50 мм., проложенный с двух сторон гидропароизоляцией..

Утепление потолка 2-го этажа утеплитель (минеральная вата URSA/IZOVER) толщиной 50 мм., проложенный с двух сторон гидропароизоляцией. Возможно увеличение толщины утепления.

Стеновой материал 1-го и 2-го этажей

Профилированный брус хвойных пород сечением 90х135 мм./135х135 мм.  (строгается из бруса 100х150 мм./150х150 мм.).

Фронтоны

Каркасно-щитовые. С наружной стороны фронтоны обшиты вагонкой хвойных пород естественной влажности, внутри – не обшиваются.

Сборка сруба

Стены собираются «в тёплый угол». Между венцами сруба прокладывается джут. Наружные углы сруба закрываются вагонкой. Перегородки 1-го этажа выполнены из профилированного бруса хвойных пород сечением 90х135 мм.  (строгается из бруса 100х150 мм.). Каркасно-щитовые перегородки (если есть согласно плану) обшиты с двух сторон сухой вагонкой хвойных пород.

Перегородки 2-го этажа (если есть)

Каркасно-щитовые, не утеплённые. Каркас перегородок выполнен из бруска 50х50 мм. и обшит с двух сторон сухой вагонкой хвойных пород. Возможно утепление перегородок (в качестве шумоизоляции).

Высота потолка 1-го этажа 2,50 м. ± 5 см.

Высота потолка 2-го этажа 2,40 м. ± 5 см.

Стропильные фермы Обрезная доска 50х150 мм. (на ребро) с шагом 80-100 см.

Обрешётка Необрезная окоренная доска толщиной 20 мм. с шагом 30-40 см.

Кровля Ондулин (цвет – красный / зелёный / коричневый) или оцинкованный профнастил. Под крышу укладывается гидропароизоляция. Возможна замена кровельного покрытия на металлочерепицу или мягкую кровлю.

Свесы кровли Ширина 0,40-0,50 м. Подшиваются вагонкой хвойных пород естественной влажности.

Углы внутренних помещений Отделываются плинтусом хвойных пород.

Входная дверь Металлическая, утеплённая.

Межкомнатные двери Филенчатые.

Окна Деревянные окна двойного остекления, открывающиеся.

Установка окон и дверей При установке окон и дверей над ними оставляется технологический зазор для усадки 3-5 см., который закладывается утеплителем и закрывается обналичкой.

Лестница Ступени, перила, ограждение на 2-ом этаже (из строганной доски).

Терраса Стойки, перила (строганная доска 40х100 мм.), балясины (строганный брусок 40х40 мм.). Потолок – подшивается вагонкой хвойных пород естественной влажности. Пол – половая шпунтованная доска толщиной 28 мм. (возможна замена на половую доску толщиной 36 мм.). Пол и потолок террасы – не утеплённые.

В стоимость входит доставка по РБ, разгрузка и монтаж.

По желанию Заказчика, возможно изменение комплектации!

Возможна установка свайно-винтового фундамента!